88 000 Р 1 140 $ или 961

Информация об помещении

цоколь
Этаж

Состояние и оснащение

Количество этажей
5
Развернуть
Агент
+7 (981) 400-85-96
Начать чат с агентом

Помещение свободного назначения в Карелия, Кондопога ул. Бумажников, 8 ...

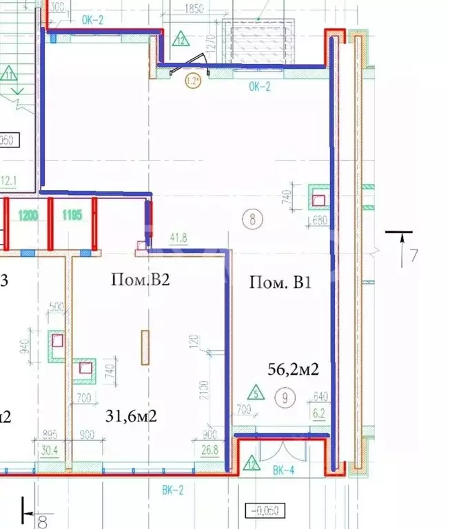
Код объекта: 1646013.Предлагаем в аренду помещение в г. Кондопога, расположенное в цокольном этаже, 5-ти этажного жилого дома, по адресу: ул. Бумажников 8.Общая площадь объекта 298,2 кв.м. из их 40 кв.м. арендует Walderries, на плане это помещение отмечено красным цветов.Предлагаемая площадь в аренду, составляет 252,8 кв.м.Помещение подойдет практически под любой вид деятельности, салон красоты, отделение финансовой организации, магазин, офис, склад и т.п.Высота потолков 2.62 м.Основные преимущества:- Центр города;- Зона разгрузки погрузки;- Отдельный вход;- Санузел;- Хорошая транспортная доступность;- Хорошие подъездные пути;- Высокий пешеходный и автомобильный трафик.Коммуникации: - Электричество 15 кВт.- Вода холодная центральная .- Горячая через бойлер.- Отопление центральное.Любая форма оплаты. Полное и платное сопровождение сделки

Читать полностью
    Позвонить Написать
    88 000 Р1 140 $ или 961
    Агент
    +7 (981) 400-85-96
    Начать чат с агентом
    Похожие предложения
    Помещение свободного назначения в Калужская область, Калуга Тульская ... - Фото 1
    Помещение свободного назначения в Калужская область, Калуга Тульская ... - Фото 2
    Арт.Вашему вниманию представлено КОММЕРЧЕСКОЕ ПОМЕЩЕНИЕ по адресу Тульская 32.Преимущества объекта:• Центр города • Первая линия от дороги ( можно сделать узнаваемую вывеску)• Приятная общая площадь 112 кв.м., даёт возможность развернуться с любой деятельностью•...
    • 1/9 эт.
    89 000 Р
    Агент
    +7 (910) Показать номер
    Посмотреть контакты
    Помещение свободного назначения в Новосибирская область, Новосибирск ... - Фото 1
    Помещение свободного назначения в Новосибирская область, Новосибирск ... - Фото 2
    Код объекта: 2005028.Помещение с отдельным входом с первой линии улицы Фрунзе, в прямой зрительной доступности. Высокий пешеходный трафик. Широкий диапазон использования. Помещение свободно, для переезда и ремонта предоставляются арендные каникулы.
    • 1/9 эт.
    89 000 Р
    Агент
    +7 (983) Показать номер
    Посмотреть контакты
    Помещение свободного назначения в Новосибирская область, Новосибирск ... - Фото 1
    Помещение свободного назначения в Новосибирская область, Новосибирск ... - Фото 2
    Код объекта: 1939062.Сдам просторное коммерческое помещение общей площадью 213 м на первой линии с ремонтом и высокой проходимостью Ул. Народная 8/1Возможна аренда нескольких вариантов площадей: 213 кв.м. - два входа, 175 кв.м. - два входа, в помещении...
    • 1/10 эт.
    88 000 Р
    Агент
    +7 (983) Показать номер
    Посмотреть контакты
    Помещение свободного назначения в Свердловская область, Екатеринбург ... - Фото 1
    Помещение свободного назначения в Свердловская область, Екатеринбург ... - Фото 2
    Предлагается в аренду помещение свободного назначенияБез комиссии для арендаторов.-Помещение расположено в ЖК Квартал На Некрасова -1 уровень в 10 этажном доме; -Находится в центральной части города,азвитая инфраструктура, рядом располагаются: продовольственные...
    • -1/10 эт.
    88 000 Р
    Агент
    +7 (912) Показать номер
    Посмотреть контакты
    Помещение свободного назначения в Ульяновская область, Ульяновск ул. ... - Фото 1
    Помещение свободного назначения в Ульяновская область, Ульяновск ул. ... - Фото 2
    Сдаётся в аренду помещение свободного назначения площадью 74 кв. м. Проведена вода, есть свой санузел, подсобки. Находится на первом этаже с отдельным входом и запасным выходом. Фото старые, сейчас сделан ремонт. За более подробной информацией позвоните...
    • 1/5 эт.
    88 800 Р
    Агент
    +7 (917) Показать номер
    Посмотреть контакты

    Не нашли подходящего объявления?

    Оставьте заявку, и наши риэлторы подберут псн в районе Кондопоги

    (0)