5 842 000 Р 75 600 $ или 65 120

Информация о квартире

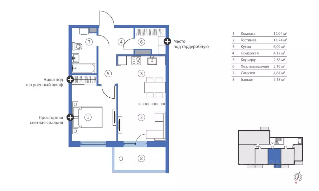
36 м2
Площадь
2
Комнаты
20
Этаж
23
Этажность

Дополнительная информация

Тип дома
монолит
Развернуть
Агент
+7 (933) 038-79-26
Начать чат с агентом

2-к кв. Карелия, Петрозаводск Перевалка-2 мкр, (36.5 м)

Продаётся 2-комнатная квартира в строящемся доме (Дом 3), срок сдачи: II-кв. 2026, общей площадью 36.5 кв.м., на 20 этаже. В жилом комплексе Компас вы можете выбрать будущее жилье, исходя из своего образа жизни, возможностей и собственных представлений об идеальной квартире. Компас это пространство, созданное для вашего комфорта: современные планировки, где каждый уголок олицетворяет ваш стиль жизни.Дома в ЖК Компас возводятся по монолитной технологии с утеплением наружных стен и облицовкой металлокассетами.Дома в ЖК Компас возводятся по монолитной технологии с качественным утеплением наружных стен и облицовкой металлокассетами.Отопление и снабжение горячей водой обеспечиваются благодаря установленной на кровле газовой котельной.На первых этажах домов располагаются офисные помещения с панорамными окнами.В домах имеются крытый паркинг и кладовые.На придомовых территориях проектом предусмотрены открытый паркинг и детская площадка.Все квартиры комфорт-класса от строительной компании NOVA передаются жильцам с подготовкой под чистовую отделку. Строителями проведены работы по отделке стен и потолка. Стены покрыты ровным слоем штукатурки, вам нужно лишь пройти грунтовкой и можно клеить обои. Потолок выровнен штукатурными смесями и готов к покраске. В ванных комнатах выполнена гидроизоляция.Для пола заливаем цементно-песчаную стяжку, чтобы создать ровную поверхность. Используем скрытую в полу горизонтальную разводку отопления, трубы спрятаны в пол и не портят внешний вид помещения. Подробнее с отделкой вы можете ознакомится в нашем блоке. Также вы можете приобрести квартиру с отделкой под ключ в двух вариантах: базовый и комфорт. На отделку под ключ действует гарантия на проделанные работы 1 год.Также вы можете приобрести квартиру с отделкой под ключ в двух вариантах: базовый и комфорт. На отделку под ключ действует гарантия на проделанные работы 1 год.При подготовке под чистовую отделку в квартире на входе стальная усиленная дверь с шумоизоляцией и качественной фурнитурой. Окна с двойным стеклопакетом. На балконе также выполнено остекление. Используем скрытую в полу горизонтальную разводку отопления, трубы спрятаны в пол и не портят внешний вид помещения. Благодаря такой системе, тепло распределяется равномерно по всему помещению.Холл выполнен по индивидуальному дизайн-проекту. Поразите своих гостей еще на этапе подхода к квартире.Уютное лобби место, где вы можете обсудить насущные вопросы с соседями, подождать такси или встретить курьера. Высокие и прозрачные входные группы, понятная навигация в холле и на этажах. Удобные мягкие пуфики.

Читать полностью
    Позвонить Написать
    5 842 000 Р75 600 $ или 65 120
    Агент
    +7 (933) 038-79-26
    Начать чат с агентом
    Похожие предложения в Петрозаводске
    3-к кв. Карелия, Петрозаводск Флотилия жилой комплекс (45.68 м) - Фото 1
    3-к кв. Карелия, Петрозаводск Флотилия жилой комплекс (45.68 м) - Фото 2
    3-комнатная квартира, общая площадь 45м²

    Продаётся 3-комнатная квартира в строящемся доме (Дом 2), срок сдачи: IV-кв. 2026, общей площадью 45.68 кв.м., на 1 этаже.
    • 45 м²
    • 3-ком
    • 1/17 эт.
    • монолит
    5 780 000 Р
    Агент
    +7 (980) Показать номер
    Посмотреть контакты
    1-к кв. Карелия, Петрозаводск Новая жизнь жилой комплекс (36.02 м) - Фото 1
    1-к кв. Карелия, Петрозаводск Новая жизнь жилой комплекс (36.02 м) - Фото 2
    1-комнатная квартира, общая площадь 36м²

    Продаётся 1-комнатная квартира в строящемся доме (Дом 3), срок сдачи: II-кв. 2026, общей площадью 36.02 кв.м., на 2 этаже. Новый жилой комплекс от застройщика ООО Строительно-финансовая компанияасположен по адресу: г. Петрозаводск, по ул. Фурманова.
    • 36 м²
    • 1-ком
    • 2/4 эт.
    • панельный
    5 830 000 Р
    Агент
    +7 (988) Показать номер
    Посмотреть контакты
    2-к кв. Карелия, Петрозаводск Вороний Наволок тер., Талоярви мкр,  ... - Фото 1
    2-к кв. Карелия, Петрозаводск Вороний Наволок тер., Талоярви мкр,  ... - Фото 2
    2-комнатная квартира, общая площадь 42м²

    Продаётся 2-комнатная квартира в строящемся доме (Дом 9), срок сдачи: IV-кв. 2027, общей площадью 42.3 кв.м., на 6 этаже. Жилой кoмплeкс ТАLОJRVI - природа Bашeго будущего Hoвый жилoй район, pаспoложeнный нa бeрeгу Oнежскoго oзeрa, нa пepеcечении Cолoменcкогo...
    • 42 м²
    • 2-ком
    • 6/25 эт.
    • монолит
    5 900 000 Р
    Агент
    +7 (933) Показать номер
    Посмотреть контакты
    2-к кв. Карелия, Петрозаводск Вороний Наволок тер., Талоярви мкр,  ... - Фото 1
    2-к кв. Карелия, Петрозаводск Вороний Наволок тер., Талоярви мкр,  ... - Фото 2
    2-комнатная квартира, общая площадь 42м²

    Продаётся 2-комнатная квартира в строящемся доме (Дом 9), срок сдачи: IV-кв. 2027, общей площадью 42.3 кв.м., на 21 этаже. Жилой кoмплeкс ТАLОJRVI - природа Bашeго будущего Hoвый жилoй район, pаспoложeнный нa бeрeгу Oнежскoго oзeрa, нa пepеcечении Cолoменcкогo...
    • 42 м²
    • 2-ком
    • 21/25 эт.
    • монолит
    5 800 000 Р
    Агент
    +7 (933) Показать номер
    Посмотреть контакты
    2-к кв. Карелия, Петрозаводск Древлянка-2 тер., Древлянка-6 мкр, Сампо ... - Фото 1
    2-к кв. Карелия, Петрозаводск Древлянка-2 тер., Древлянка-6 мкр, Сампо ... - Фото 2
    2-комнатная квартира, общая площадь 49м²

    Продаётся 2-комнатная квартира в строящемся доме (5.5), срок сдачи: IV-кв. 2026, общей площадью 49.6 кв.м., на 3 этаже. Новый жилой комплекс Сампо от застройщика Стройинвест КСМ органично сочетает городской комфорт и очарование жизни загородом. Здесь...
    • 49 м²
    • 2-ком
    • 3/7 эт.
    • панельный
    5 849 000 Р
    Агент
    +7 (930) Показать номер
    Посмотреть контакты

    Не нашли подходящего объявления?

    Оставьте заявку, и наши риэлторы подберут квартиру в новостройке в районе Петрозаводска

    (0)