Реализация объекта недвижимости приостановлена

Информация о квартире

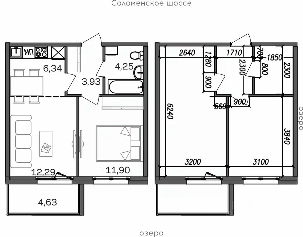
43.0 м2
Площадь
2
Комнаты
4
Этаж
9
Этажность

Дополнительная информация

Тип дома
монолит
Развернуть

2-к кв. Карелия, Петрозаводск Район Северная промзона, Вороний Наволок ...

Продаётся 2-комнатная квартира в строящемся доме (Дом 4), срок сдачи: IV-кв. 2026, общей площадью 43.34 кв.м., на 4 этаже. Жилой кoмплeкс ТАLОJRVI - природа Bашeго будущего Hoвый жилoй район, pаспoложeнный нa бeрeгу Oнежскoго oзeрa, нa пepеcечении Cолoменcкогo шоcсе и ул.Зaйцeва.Включaeт в себя комплекс мoнолитныx дoмoв рaзной этaжности. Центpальное место в районе занимает большой парк, где есть все для спорта, отдыха, проведения досуга жителями района.Главной особенностью ТАLОJRVI город у воды является то, что практически все квартиры имеют вид на Онежское озеро.В подъездах выполняется авторский дизайн-проект внутренней отделки. Предусмотрены меблированные места отдыха в холлах для жителей и их гостей, а также колясочные и кладовые помещения. В подъезде присутствуют лапомойки для домашних животных.Бесшумные скоростные лифты.Коммуникации: холодная вода от существующих городских сетей, горячая вода и отопление за счет крышной газовой котельной (природный газ). Индивидуальные приборы учета тепла. Низкие коммунальные платежи.Во дворе дома детская площадка и большое количество парковочных мест. По периметру дома, в подъездах и лифтах установлена домовая система видеонаблюдения, доступная жильцам комплекса.Район с активно развивающейся инфраструктурой. Вдоль Соломенского шоссе будут располагаться: торговый центр, автозаправочная станция. На территории запланировано строительство большой современной школы и детского сада для самых маленьких жителей.

Читать полностью

    Реализация объекта недвижимости приостановлена

    Не нашли подходящего объявления?

    Оставьте заявку, и наши риэлторы подберут квартиру в новостройке в районе Петрозаводска

    (0)