Реализация объекта недвижимости приостановлена

Информация о квартире

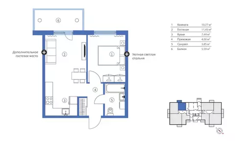
31.0 м2
Площадь
1
Комната
5
Этаж
9
Этажность

Дополнительная информация

Тип дома
панельный
Развернуть

1-к кв. Карелия, Петрозаводск Мичуринская ул., 34 (31.0 м)

Продаётся 1-комнатная квартира в сданном доме (Мичуринская, 34 (Дом 1)), срок сдачи: III-кв. 2025, общей площадью 31 кв.м., на 5 этаже. 9-этажный дом удобно расположится в развитом микрорайоне - на Перевалке. Выбирая эту новостройку вы получите все преимущества микрорайона (можно быстро добраться до работы, рядом садики, школы и магазины), при этом у вас будут все плюсы проживания в новой квартире от надежного застройщика. На придомовой территории предусмотрены детская площадка, зона для спорта и отдыха. Квартирография - это 71 квартира, среди которых: небольшие уютные 1-комнатные варианты площадью 31-36 кв.м.хорошие и светлые евродвушки площадью 43 кв.м.продуманные 3-комнатные планировки площадью 59 кв.м. с раздельным санузлом и окнами на 2 стороныДля удобства жителей в доме предусмотрены кладовые помещения, которые решат вопрос хранения крупногабаритных и сезонных вещей. Сдача дома запланирована на 2025 год.

Читать полностью

    Реализация объекта недвижимости приостановлена

    Не нашли подходящего объявления?

    Оставьте заявку, и наши риэлторы подберут квартиру в новостройке в районе Петрозаводска

    (0)