Реализация объекта недвижимости приостановлена
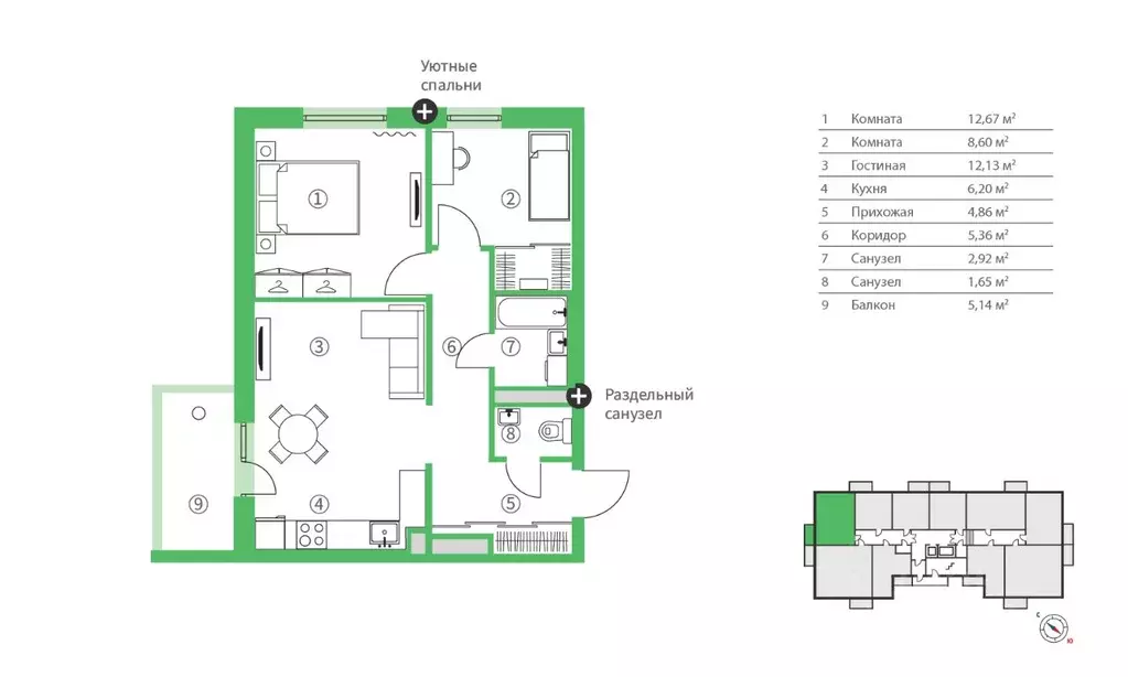
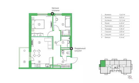
Продаётся 3-комнатная квартира в строящемся доме (5.1), срок сдачи: IV-кв. 2026, общей площадью 59.53 кв.м., на 14 этаже. Новый жилой комплекс Сампо от застройщика Стройинвест КСМ органично сочетает городской комфорт и очарование жизни загородом. Здесь каждый сможет найти то, что ему необходимо: Для семей с детьми - детский сад, встроенный в один из домов ЖК и новая школа, построенная на территории микрорайона; Для молодежи - доступность центра и разнообразие функциональных планировок; Для старшего поколения - близость магазинов, тишина и покой. Внутренняя инфраструктура ЖК Сампо гармонично сочетает близость к природе и самодостаточность. На территории комплекса разместятся: Торгово-развлекательный центр с продовольственным магазином; Точки с товарами и услугами первой необходимости; Также стоит отметить, что дома комплекса оборудованы собственными автономными котельными, что позволит жителям самостоятельно определять сроки отопительного сезона и экономить на коммунальных платежах.
Реализация объекта недвижимости приостановлена
Оставьте заявку, и наши риэлторы подберут квартиру в новостройке в районе Петрозаводска
