3 900 000 Р 47 850 $ или 40 780

Информация о квартире

43 м2
Площадь
27 м2
Жилая
5 м2
Кухня
2
Комнаты
1
Этаж
5
Этажность

Дополнительная информация

Тип дома
панельный
Развернуть
Агент
Игорь Мотин (Владис)
+7 (981) 400-85-96
Начать чат с агентом

2-к кв. Карелия, Петрозаводск Станционная ул., 30 (43.6 м)

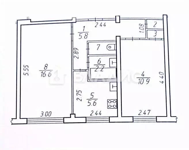
Код объекта: 1710451. Отличное предложение для тех, кто ищет квартиру в хорошем районе Петрозаводска Продаётся двухкомнатная квартира по адресу: Станционная улица, дом 30. Квартира расположена на первом этаже пятиэтажного панельного дома 1970 года постройки. Общая площадь — 43,6 кв. м, из которых 27,5 кв. м — жилая площадь. В квартире две изолированных комнаты площадью 16,6 кв. м и 10,9 кв. м, кухня — 5,6 кв. м, раздельный санузел. Квартира подойдёт тем, кто ищет доступное жильё в районе с развитой инфраструктурой. Рядом с домом есть наземная парковка, за квартирой закреплено парковочное место.Центральное отопление, газовая плита, газовая колонка.Квартира без долгов и обременений. Освобождена. Готова к продаже.Быстрый выход на сделку.В шаговой доступности располагается вся необходимая инфраструктура: ТЦ Тетрис , кафе, продуктовые магазины.Школа 27, Ломоносовская гимназия, Детский сад 2, 12.- Любая форма оплаты: наличные, ипотека, сертификаты;- Полное юридическое сопровождение и безопасность;Данную квартиру можно приобрести даже если Ваша еще не продана Звоните и записывайтесь на просмотр Мы гарантируем безопасную сделку и юридическую поддержку нашим клиентам. Поможем одобрить ипотеку с сниженной ставкой.

Читать полностью

    Для того, чтобы купить двухкомнатную квартиру по адресу: Петрозаводск, ул. Станционная, 30, позвоните по телефону +7 (981) 400-85-96. Торопитесь! Объявление №30089848346 о продаже двухкомнатной квартиры опубликовано 27 сентября 2025.

    Позвонить Написать
    3 900 000 Р47 850 $ или 40 780
    Агент
    Игорь Мотин (Владис)
    +7 (981) 400-85-96
    Начать чат с агентом
    Похожие предложения
    1-к кв. Карелия, Петрозаводск Карельский просп., 16 (30.0 м) - Фото 1
    1-к кв. Карелия, Петрозаводск Карельский просп., 16 (30.0 м) - Фото 2
    1-комнатная квартира, общая площадь 30м², жилая 17м², кухня 7м²

    Код объекта: 1638989. Пpeдлaгается к покупке 1-комнатнaя квapтиpa по адрeсу: пр.Карельский на 5 этаже пятиэтажного дома, без балкона OСНОВHЫE ПPEИМУЩЕСTВА:- Сдeлан еврорeмoнт;- Ламинaт в комнатах;- Выровнены полы;- Установлены двухкамерные стеклопакеты;-...
    • 30 м²
    • 1-ком
    • 5/5 эт.
    • панельный
    3 999 999 Р
    Агент
    +7 (981) Показать номер
    Посмотреть контакты
    2-комнатная квартира, общая площадь 44м², жилая 34м², кухня 6м²

    Вашему вниманию предлагается полноценная просторная 2 комнатная квартирапо адресу: Республика Карелия, г.Петрозаводск, ул.Нойбранденбургская, д. 16АОтличное предложение для проживания семьив тихом месте. Места хватит всем Комфортный четвертыйэтаж Кваpтира...
    • 44 м²
    • 2-ком
    • 4/5 эт.
    3 850 000 Р
    Агент
    +7 (906) Показать номер
    Посмотреть контакты
    1-комнатная квартира, общая площадь 36м², жилая 18м², кухня 7м²

    Код объекта: 1812134. Уникальное предложение в ПетрозаводскеВы ищете квартиру, которая сочетает в себе выгодное расположение, разумную цену и комфорт? Тогда обратите внимание на нашу квартиру в Петрозаводске по адресу: улица Чкалова, 47. Основные характеристики-...
    • 36 м²
    • 1-ком
    • 9/9 эт.
    3 960 000 Р
    Агент
    +7 (906) Показать номер
    Посмотреть контакты
    2-комнатная квартира, общая площадь 48м², жилая 34м², кухня 7м²

    Код объекта: 1809718. Продаётся уютная двухкомнатная квартира 48,1 м по адресу: Сегежская, 3. Отличная планировка «распашонка - комнаты изолированы друг от друга, что обеспечивает комфорт и приватность. Идеальный вариант для тех, кто хочет сделать ремонт...
    • 48 м²
    • 2-ком
    • 2/5 эт.
    3 900 000 Р
    Агент
    +7 (906) Показать номер
    Посмотреть контакты
    2-к кв. Карелия, Петрозаводск Ведлозерская ул., 18Б (48.5 м) - Фото 1
    2-к кв. Карелия, Петрозаводск Ведлозерская ул., 18Б (48.5 м) - Фото 2
    2-комнатная квартира, общая площадь 48м², жилая 28м², кухня 7м²

    Код объекта: 1699432. Продажа двухкомнатной квартиры в Петрозаводске Адрес: Россия, Республика Карелия, Петрозаводск, Ведлозерская улица, 18Б.Основные характеристики:- Год постройки: 1983.- Материал постройки: кирпичный.- Этажность: 9.- Этаж: 8.- Общая...
    • 48 м²
    • 2-ком
    • 8/9 эт.
    • кирпичный
    3 999 990 Р
    Агент
    +7 (981) Показать номер
    Посмотреть контакты

    Не нашли подходящего объявления?

    Оставьте заявку, и наши риэлторы подберут квартиру в районе Петрозаводска

    (0)