14 900 000 Р 184 200 $ или 159 600

Информация о квартире

109 м2
Площадь
72 м2
Жилая
18 м2
Кухня
4
Комнаты
1
Этаж
3
Этажность

Дополнительная информация

Тип дома
блочный
Развернуть
Агент
+7 (981) 400-85-96
Начать чат с агентом

4-к кв. Карелия, Петрозаводск проезд Фонтанный, 17 (109.0 м)

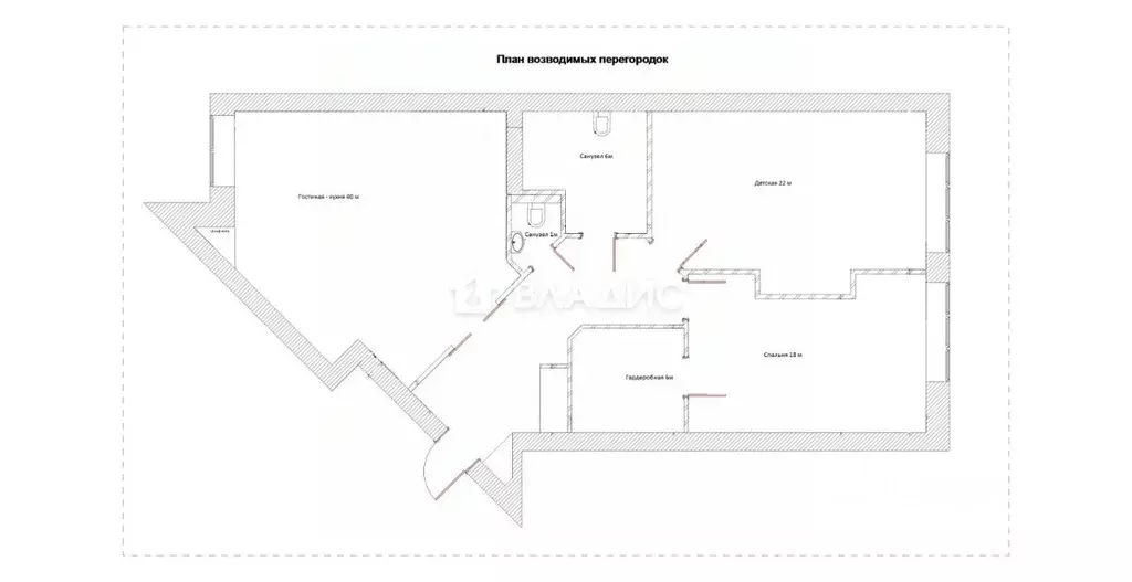
Код объекта: 1855114. Предлагается к покупке трехуровневую, четырехкомнатную квартиру на Фонтанном пр-де, д. 17. Прекрасная, светлая и просторная квартира, ищет своего покупателя. В квартире выполнен современный ремонт, использовались качественные строительные материалы, при помощи квалифицированных строителях. - Установлена кухня, бытовая техника, шкафы.- Потолки натяжные.- На полу уложен ламинат, в сан.узлах кафельная плитка.Площадь: 109/72,8/18,4 кв. м. (общая/жилая/кухня) - Две большие лоджии.- Дополнительная прихожая.- Место под кладовую на третьем этаже.- Два сан. узла. Коммуникации:- Электроснабжение 12.5 квт.- Водоснабжение центральное.- Канализация центральная.- Отопление - индивидуальный котел.Фундамент - бетонная плита.Перекрытия - железобетонные.Стены и межкомнатные перегородки - газобетонные блоки.Преимущество:- У каждой квартиры свой отдельный вход.- Для каждой из квартир, предусмотрена своя придомовая территория за домом, её можно использовать как зону барбекю, для посадки цветов или просто для отдыха летом.- Место тихое и спокойное.- Земля под домом в общем, совместном пользовании.Форма оплаты любая, полное, платное сопровождение сделки

Читать полностью

    Для того, чтобы купить четырехкомнатную квартиру по адресу: Петрозаводск, проезд Фонтанный, 17, позвоните по телефону +7 (981) 400-85-96. Торопитесь! Объявление №30091109362 о продаже четырехкомнатной квартиры опубликовано 2 дня назад.

    Позвонить Написать
    14 900 000 Р184 200 $ или 159 600
    Агент
    +7 (981) 400-85-96
    Начать чат с агентом
    Похожие предложения
    3-к кв. Карелия, Петрозаводск Коммунальная ул., 1 (101.2 м) - Фото 1
    3-к кв. Карелия, Петрозаводск Коммунальная ул., 1 (101.2 м) - Фото 2
    3-комнатная квартира, общая площадь 101м², жилая 80м², кухня 15м²

    Код объекта: 1356824. Предлагаем к покупке великолепную трёхкомнатную квартиру в центре г. Петрозаводска общей площадью 101,2 кв. м в ЖК Гранд по адресу: ул. Коммунальная, д.1. Дом построен в 2012 году из монолитного материала.Квартира расположена...
    • 101 м²
    • 3-ком
    • 3/17 эт.
    • монолит
    15 700 000 Р
    Агент
    +7 (981) Показать номер
    Посмотреть контакты
    3-к кв. Карелия, Петрозаводск ул. Володарского, 27 (94.9 м) - Фото 1
    3-к кв. Карелия, Петрозаводск ул. Володарского, 27 (94.9 м) - Фото 2
    3-комнатная квартира, общая площадь 94м², жилая 70м², кухня 13м²

    Код объекта: 1838184. Эксклюзивная квартира в кирпичном доме. Наслаждайтесь всеми преимуществами городской жизни, окружённые уютом и комфортом собственного пространства. Огороженная территория для вашей безопасности и спокойствия Домашняя сауна для расслабления...
    • 94 м²
    • 3-ком
    • 4/5 эт.
    • кирпичный
    15 999 999 Р
    Агент
    +7 (981) Показать номер
    Посмотреть контакты
    3-к кв. Карелия, Петрозаводск ул. Федосовой, 31 (67.6 м) - Фото 1
    3-к кв. Карелия, Петрозаводск ул. Федосовой, 31 (67.6 м) - Фото 2
    3-комнатная квартира, общая площадь 67м², жилая 44м², кухня 10м²

    Код объекта: 1733407. Уникальное предложение на рынке недвижимости Петрозаводска Продаётся трёхкомнатная квартира площадью 67,6 кв. м на втором этаже девятиэтажного дома по адресу: улица Федосовой, 31.В квартире выполнен качественный ремонт с использованием...
    • 67 м²
    • 3-ком
    • 2/9 эт.
    • блочный
    15 600 000 Р
    Агент
    +7 (981) Показать номер
    Посмотреть контакты
    3-комнатная квартира: Петрозаводск, улица Володарского, 27 (95 м) - Фото 1
    3-комнатная квартира: Петрозаводск, улица Володарского, 27 (95 м) - Фото 2
    3-комнатная квартира, общая площадь 95м², жилая 70м², кухня 13м²

    Записывайтесь на показ Цена ниже рынка пока есть встречный объект на покупку _____________________________предложение для тех кто искал вариант недвижимости в кирпичных домах до 2000 г.п. Вашему вниманию редкая продажа : великолепный вариант спокойствия...
    • 95 м²
    • 3-ком
    • 4/5 эт.
    15 100 000 Р
    Агент
    +7 (906) Показать номер
    Посмотреть контакты
    5-к кв. Карелия, Петрозаводск ул. Ровио, 4А (124.5 м) - Фото 1
    5-к кв. Карелия, Петрозаводск ул. Ровио, 4А (124.5 м) - Фото 2
    5-комнатная квартира, общая площадь 124м², жилая 97м², кухня 9м²

    Код объекта: 1809839. Продается просторная, высококачественная, двухуровневая, пятикомнатная квартира на ул. Ровио, 4а.Квартира расположена на 5-6 этаже, 6-этажного кирпичного дома - 2002 года постройки(высокий уровень шумоизоляции, теплоизоляции и износостойкости)-...
    • 124 м²
    • 5-ком
    • 5/6 эт.
    • кирпичный
    15 500 000 Р
    Агент
    +7 (981) Показать номер
    Посмотреть контакты

    Не нашли подходящего объявления?

    Оставьте заявку, и наши риэлторы подберут квартиру в районе Петрозаводска

    (0)