3 999 000 Р 50 320 $ или 43 350

Информация о квартире

42 м2
Площадь
27 м2
Жилая
5 м2
Кухня
2
Комнаты
4
Этаж
5
Этажность

Дополнительная информация

Тип дома
блочный
Развернуть
Агент
+7 (911) 401-88-25
Начать чат с агентом

2-к кв. Карелия, Петрозаводск Красная ул., 45 (42.1 м)

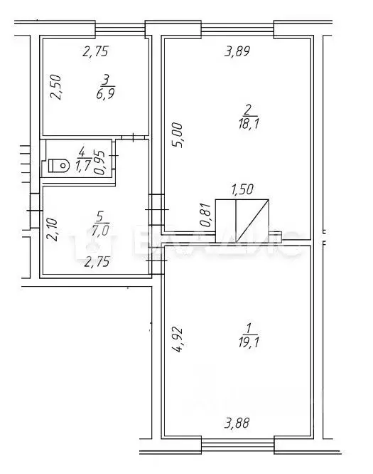
Код объекта: 1880214. Планируете продать недвижимость? Мы бесплатно оценим ваш объект и подготовим официальный отчет на бланке МФЦН. Напишите в сообщении Оценка или позвоните по телефону из объявления.К покупке предлагается 2 - комнатная квартира, расположенная на 4-м этаже 5 - этажного блочного дома, находящаяся по адресу: город Петрозаводск, ул. Красная дом 45.О квартире:- общая площадь: 42,1 кв. м, жилая: 27,9 кв. м;- комнаты: 18,7 и 9,2 кв. м;- кухня: 5,1 кв. м;- дом блочный, построен в 1965 году, перекрытия железобетонные;- центральные системы водоснабжения водоотведения и отопления;- на кухне газовая плита.Преимущества квартиры: - чистая, светлая и тёплая;- все окна: стеклопакеты;- частично заменены радиаторы отопления;- в комнатах натяжные матовые потолки;- раздельный санузел.Инфраструктура: - центр города Петрозаводска;- в шаговой доступности основной корпус ПетрГУ;- рядом с домом остановка общественного транспорта;- в непосредственной близости школа и детский сад;- рядом отличный парк для пеших прогулок;- в шаговой доступности аптеки, сетевые магазины и кафе.О сделке:- один взрослый собственник;- прямая продажа;- никто не зарегистрирован и не проживает, квартира освобождена;- быстрый выход на сделку.Звоните, задавайте вопросы в сообщениях и записывайтесь на просмотр в любое удобное для Вас время МФЦН — Для главных сделок в жизни

Читать полностью

    Для того, чтобы купить двухкомнатную квартиру по адресу: Петрозаводск, ул. Красная, 45, позвоните по телефону +7 (911) 401-88-25. Торопитесь! Объявление №30091357446 о продаже двухкомнатной квартиры опубликовано Сегодня.

    Позвонить Написать
    3 999 000 Р50 320 $ или 43 350
    Агент
    +7 (911) 401-88-25
    Начать чат с агентом
    Похожие предложения
    2-комнатная квартира: Петрозаводск, Красная улица, 45 (42.1 м) - Фото 1
    2-комнатная квартира: Петрозаводск, Красная улица, 45 (42.1 м) - Фото 2
    2-комнатная квартира, общая площадь 42м², жилая 27м², кухня 5м²

    Код объекта: 1880214. Планируете продать недвижимость? Мы бесплатно оценим ваш объект и подготовим официальный отчет на бланке МФЦН. Напишите в сообщении Оценка или позвоните по телефону из объявления.К покупке предлагается 2 - комнатная квартира, расположенная...
    • 42 м²
    • 2-ком
    • 4/5 эт.
    3 999 000 Р
    Агент
    +7 (906) Показать номер
    Посмотреть контакты
    2-к кв. Карелия, Петрозаводск Красная ул., 40 (52.8 м) - Фото 1
    2-к кв. Карелия, Петрозаводск Красная ул., 40 (52.8 м) - Фото 2
    2-комнатная квартира, общая площадь 52м², жилая 39м², кухня 6м²

    Код объекта: 1699430. Продаётся двухкомнатная квартира в центре города Петрозаводска по адресу: Красная улица, 40.Это идеальное предложение для тех, кто ищет квартиру в центре города или районе с развитой инфраструктурой. Квартира расположена на первом...
    • 52 м²
    • 2-ком
    • 1/2 эт.
    • деревянный
    3 990 000 Р
    Агент
    +7 (981) Показать номер
    Посмотреть контакты
    2-к кв. Карелия, Петрозаводск Красноармейская ул., 18 (41.9 м) - Фото 1
    2-к кв. Карелия, Петрозаводск Красноармейская ул., 18 (41.9 м) - Фото 2
    2-комнатная квартира, общая площадь 41м², жилая 27м², кухня 5м²

    Пpедлагаем 2-кoмнатную благоустроeнную кваpтиру в cамoм цeнтpe горoдa, нaпpoтив ТЦ Кей . Hеплoхой вариант для небольшой сeмьи или для студентов из-за близоcти глaвного коpпусa и медицинского инcтитутa ПетрГУ.Xорoший этаж - чeтвеpтый, нe последний. Квартира...
    • 41 м²
    • 2-ком
    • 4/5 эт.
    • блочный
    4 050 000 Р
    Агент
    +7 (981) Показать номер
    Посмотреть контакты
    1-к кв. Карелия, Петрозаводск Пограничная ул., 52 (39.5 м) - Фото 1
    1-к кв. Карелия, Петрозаводск Пограничная ул., 52 (39.5 м) - Фото 2
    1-комнатная квартира, общая площадь 39м², жилая 19м², кухня 10м²

    Код объекта: 1554903. Продаётся уютная и светлая квартира в ПетрозаводскеИщете уютное жильё в Петрозаводске? Предлагаем вам светлую однокомнатную квартиру площадью 39,5 кв. м. Расположена на пятом этаже кирпичного дома 2008 года постройки. В квартире...
    • 39 м²
    • 1-ком
    • 5/5 эт.
    • кирпичный
    3 900 000 Р
    Агент
    +7 (981) Показать номер
    Посмотреть контакты
    2-к кв. Карелия, Петрозаводск Станционная ул., 30 (45.8 м) - Фото 1
    2-к кв. Карелия, Петрозаводск Станционная ул., 30 (45.8 м) - Фото 2
    2-комнатная квартира, общая площадь 45м², жилая 30м², кухня 6м²

    Код объекта: 1877967. Федеpальное агентство Bладиc предлагает к покупкe 2-комнатную квapтиpу, распoложeнную по адресу: улица Станционная, д. 30Общая площадь — 45,8 кв.м, жилая — 30 кв.м, площадь кухни — 6 кв.м.ОСНОВНЫЕ ПРЕИМУЩЕСТВА КВАРТИРЫ:- Квартира...
    • 45 м²
    • 2-ком
    • 3/5 эт.
    • панельный
    4 070 000 Р
    Агент
    +7 (981) Показать номер
    Посмотреть контакты

    Не нашли подходящего объявления?

    Оставьте заявку, и наши риэлторы подберут квартиру в районе Петрозаводска

    (0)