3 450 000 Р 44 100 $ или 37 460

Информация о квартире

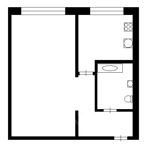
30 м2
Площадь
15 м2
Жилая
6 м2
Кухня
1
Комната
5
Этаж
5
Этажность

Дополнительная информация

Тип дома
блочный
Развернуть
Агент
+7 (981) 400-85-96
Начать чат с агентом

1-к кв. Карелия, Петрозаводск ул. Репникова, 21Б (30.4 м)

Код объекта: 1861189.Уникальное предложение для тех, кто ищет комфортное жильё в живописном районе Петрозаводска Продаётся однокомнатная квартира площадью 30,4 кв. м на улице Репникова, 21Б.В квартире выполнен косметический ремонт, что позволит вам сразу заселиться и внести свои изменения по вкусу.Окна выходят во двор, обеспечивая достаточное естественное освещение, отсутствие шума от дорог. Жилая площадь составляет 15,8 кв. м, площадь кухни — 6,3 кв. м. Новая проводка, заменены трубы.Перебраны полы на кухне и в коридоре. Новым собственникам остаётся мебель в ванной комнате, кухня, встроенные шкафы.Спокойные соседи.Рассмотрим вариант ОБМЕНА на 2-х комнатную квартиру. Отличное расположение квартиры позволит вам быстро добраться до любой точки города благодаря хорошей транспортной доступности. Рядом есть всё необходимое для комфортной жизни: магазины, школы, детские сады и медицинские учреждения.Мы гарантируем безопасную сделку и юридическую поддержку нашим клиентам. Поможем одобрить ипотеку с сниженной ставкой.Звоните нам прямо сейчас, чтобы узнать больше и записаться на просмотр

Читать полностью

    Для того, чтобы купить однокомнатную квартиру по адресу: Петрозаводск, ул. Репникова, 21Б, позвоните по телефону +7 (981) 400-85-96. Торопитесь! Объявление №30091405356 о продаже однокомнатной квартиры опубликовано 04 января 2026.

    Позвонить Написать
    3 450 000 Р44 100 $ или 37 460
    Агент
    +7 (981) 400-85-96
    Начать чат с агентом
    Похожие предложения
    2-к кв. Карелия, Петрозаводск ул. Коммунистов, 32а (42.0 м) - Фото 1
    2-к кв. Карелия, Петрозаводск ул. Коммунистов, 32а (42.0 м) - Фото 2
    2-комнатная квартира, общая площадь 42м², жилая 27м², кухня 6м²

    В продаже двухкомнатная квартира у Державинского парка Теплый блочный домРаздельная планировкаТихий и спокойный районБлагоустроенная территорияКвартира имеет рациональную планировку с раздельными комнатами, площадью 17 и 10 м2, кухней 6 м2 и санузлом...
    • 42 м²
    • 2-ком
    • 1/5 эт.
    • блочный
    3 499 900 Р
    Агент
    +7 (981) Показать номер
    Посмотреть контакты
    1-к кв. Карелия, Петрозаводск ул. Максима Горького, 18 (33.7 м) - Фото 1
    1-к кв. Карелия, Петрозаводск ул. Максима Горького, 18 (33.7 м) - Фото 2
    1-комнатная квартира, общая площадь 33м², жилая 19м², кухня 5м²

    Код объекта: 1973175.Планируете продать недвижимость? Мы бесплатно оценим ваш объект и подготовим официальный отчет на бланке МФЦН. Напишите в сообщении Оценка или позвоните по телефону из объявления.К покупке предлагается 1 - комнатная квартира, расположенная...
    • 33 м²
    • 1-ком
    • 5/5 эт.
    • блочный
    3 600 000 Р
    Агент
    +7 (911) Показать номер
    Посмотреть контакты
    4-к кв. Карелия, Сегежа ул. Антикайнена, 1 (76.8 м) - Фото 1
    4-к кв. Карелия, Сегежа ул. Антикайнена, 1 (76.8 м) - Фото 2
    4-комнатная квартира, общая площадь 76м², жилая 48м², кухня 9м²

    Код объекта: 887209.В продаже отличная просторная 4-комнатная квартира в самом элитном доме города Сегежи.- Год постройки - 1996- Тип дома - кирпичный. Хорошая звукоизоляция.- Общая площадь - 76,8 кв.м.- Площадь кухни - 9,5 кв.м.- Жилая площадь - 48 кв.м.-...
    • 76 м²
    • 4-ком
    • 5/5 эт.
    • кирпичный
    3 400 000 Р
    Агент
    +7 (981) Показать номер
    Посмотреть контакты
    4-к кв. Карелия, Кемь ул. Фрунзе, 1 (101.7 м) - Фото 1
    4-к кв. Карелия, Кемь ул. Фрунзе, 1 (101.7 м) - Фото 2
    4-комнатная квартира, общая площадь 101м², жилая 65м², кухня 9м²

    Код объекта: 1870756.Планируете продать недвижимость? Мы бесплатно оценим ваш объект и подготовим официальный отчет на бланке МФЦН. Напишите в сообщении Оценка или позвоните по телефону из объявления.К покупке предлагается 4 - комнатная квартира, расположенная...
    • 101 м²
    • 4-ком
    • 2/4 эт.
    • кирпичный
    3 500 000 Р
    Агент
    +7 (911) Показать номер
    Посмотреть контакты
    1-к кв. Карелия, Кондопога бул. Юности, 6 (33.5 м) - Фото 1
    1-к кв. Карелия, Кондопога бул. Юности, 6 (33.5 м) - Фото 2
    1-комнатная квартира, общая площадь 33м², жилая 17м², кухня 8м²

    Код объекта: 1857719.Семейная ипотека на вторичку Продажа 1-к квартиры 33,5 м кв на 1/5 эт. дома по буль. Юности д. 6 в г. КондопогаПреимущества :новый дом 2022 годасовременные материалы и инженерные решения. Удобная планировка: • Кухня 8,8 м кв....
    • 33 м²
    • 1-ком
    • 1/5 эт.
    • панельный
    3 490 000 Р
    Агент
    +7 (981) Показать номер
    Посмотреть контакты

    Не нашли подходящего объявления?

    Оставьте заявку, и наши риэлторы подберут квартиру в районе Петрозаводска

    (0)