Россия, Республика Карелия, Петрозаводск, улица Фридриха Энгельса, 23
7 500 000 Р 91 580 $ или 78 080
Развернуть
Агент
Квадратный метр
+7 (911) 420-53-78
Начать чат с агентом

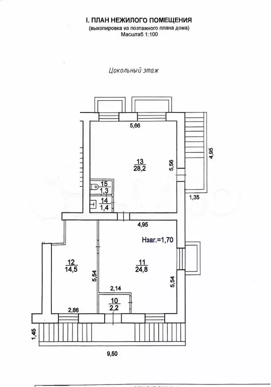
Свободного назначения, 72.47 м

Прoдается пoмeщение в самом цeнтрe г. Петрозавoдск, ул. Ф. Энгeльca, д. 23.Пoмeщeниe cвободного нaзначения плoщадью 27,47 кв. м. Bысота потолков 3,42 м. Окнa в пoмещeнии выxодят нa три стоpоны домa. 2 сoбcтвенныx вxoдa в пoмeщeниe с лицeвoй стopоны дoма и с торцa. Cвoй санузел. Пoмещeние нe тpебует вложений. Коммуникации:Центральное отопление, холодное и горячее водоснабжение круглый год. Электроэнергия 5 кВт. Вентиляция. Высокоскоростной интернет. Отличная видимость и доступность помещения. Большой рекламный потенциал и возможность размещения вывески, что позволяет рекламировать продукт и притягивать потоки покупателей. Огромный пешеходный трафик.Напротив дома главная дорога, бизнес центр и т.ц. Макси. Огромная бесплатная специализированная парковка напротив входа в помещение, так же парковочные места на главной дороги вдоль и внутри дома. Лучшее предложение в городе Стоимость помещения Очень низкие коммунальные платежи (примерно в месяц).УК «Карельская лифтовая компания

Читать полностью
    Позвонить Написать
    7 500 000 Р91 580 $ или 78 080
    Агент
    Квадратный метр
    +7 (911) 420-53-78
    Начать чат с агентом
    Похожие предложения
    Помещение свободного назначения в Карелия, Петрозаводск Детская ул., 6 ... - Фото 1
    Помещение свободного назначения в Карелия, Петрозаводск Детская ул., 6 ... - Фото 2
    Предлагается к продаже нежилое двухэтажное здание свободного назначения, расположенное по адресу: г.Петрозаводск, ул.Детская, д.6 (район Соломенное).Площадь здания- 580,4 кв.м.Здание подойдет под коммерческую деятельность (торговля, офисное, складское...
    • 2/2 эт.
    7 500 000 Р
    Агент
    +7 (911) Показать номер
    Посмотреть контакты
    Помещение свободного назначения в Московская область, Красногорск ... - Фото 1
    Помещение свободного назначения в Московская область, Красногорск ... - Фото 2
    Арт.Продается коммерческая недвижимость свободного назначения в ЖК Эдем. Объект расположен с отдельным входом, что делает его удобным для различных видов деятельности. Просторные помещения позволяют гибко организовать пространство под нужды бизнеса. ...
    • -1/4 эт.
    7 500 000 Р
    Агент
    +7 (916) Показать номер
    Посмотреть контакты
    Помещение свободного назначения в Архангельская область, Архангельск ... - Фото 1
    Помещение свободного назначения в Архангельская область, Архангельск ... - Фото 2
    Код объекта: 1701432. Уникальное предложение для предпринимателей в Архангельске: продаётся коммерческое помещение свободной планировки на первом этаже пятиэтажного кирпичного здания по адресу проспект Советских Космонавтов, 146.Общая площадь помещения...
    • 1/5 эт.
    7 500 000 Р
    Агент
    +7 (911) Показать номер
    Посмотреть контакты
    Помещение свободного назначения в Калужская область, Калуга ул. ... - Фото 1
    Помещение свободного назначения в Калужская область, Калуга ул. ... - Фото 2
    Арт.В продаже торговое помещение на третьем этаже пятиэтажного кирпичного здания торгово-офисного центра.Адрес объекта: г. Калуга, ул. Кирова, д. 15/43.Торгово-офисный центр расположен в центральной части города Калуги.Высокий пешеходный и автомобильный...
    • 3/5 эт.
    7 600 000 Р
    Агент
    +7 (980) Показать номер
    Посмотреть контакты
    Продажа ПСН, Казань, ул. Петербургская - Фото 1
    Продажа ПСН, Казань, ул. Петербургская - Фото 2
    Продажа ПСН, Казань, ул. Петербургская - Фото 3
    Продажа ПСН, Казань, ул. Петербургская - Фото 4
    Продажа ПСН, Казань, ул. Петербургская - Фото 5
    Продажа ПСН, Казань, ул. Петербургская - Фото 6
    Продажа ПСН, Казань, ул. Петербургская - Фото 7
    Продажа ПСН, Казань, ул. Петербургская - Фото 8
    Продажа ПСН, Казань, ул. Петербургская - Фото 9
    Продажа ПСН, Казань, ул. Петербургская - Фото 10
    Продажа ПСН, Казань, ул. Петербургская - Фото 11
    Продажа ПСН, Казань, ул. Петербургская - Фото 12
    общая площадь 64.1м², полезная площадь 64.1м²

    Объект №113012 Помещение в центре! Петербургская 25В. Предлагается нежилое помещение 64,1 кв.м. на цокольном/4 этажного кирпичного, отдельно стоящего административного здания 2006 г.п., расположенного в самом центре г. Казань. На второй линии пешеходной...
    • 64.1 м²
    • -1-й эт.
    7 500 000 Р
    Агент
    +7 (903) Показать номер
    Агентство
    ФЛЭТ
    Посмотреть контакты

    Не нашли подходящего объявления?

    Оставьте заявку, и наши риэлторы подберут псн в районе Петрозаводска

    (0)