21 500 000 Р 265 600 $ или 229 300

Информация об помещении

1
Этаж

Состояние и оснащение

Количество этажей
4
Развернуть
Агент
+7 (906) 206-73-64
Начать чат с агентом

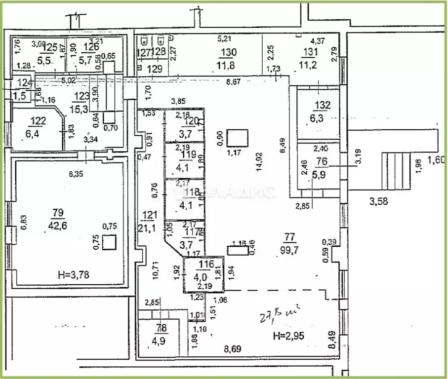
Помещение свободного назначения (261.2 м)

Код объекта: 1824986.Уникальное предложение для бизнеса в сердце Петрозаводска Продаётся коммерческое помещение свободного назначения на улице Максима Горького, 25 — идеальное место для вашего коммерческого проекта.Основные характеристики:- Федеральный арендатор: надежный партнер с высоким уровнем платежеспособности.- Парковка: удобная зона для парковки рядом с помещением, что обеспечит комфорт вашим клиентам и сотрудникам.- Зона погрузки за шлагбаумом: гарантирует безопасность и защищенность грузов, а также упрощает логистику.- Высокий пешеходный трафик: месторасположение гарантирует поток потенциальных клиентов и позволяет развивать бизнес.- Объект расположен на первом этаже четырёхэтажного кирпичного здания. Помещение отличается просторными планировками с высокими потолками (3 метра), что создаёт отличные возможности для организации пространства.Не упустите шанс стать владельцем этого уникального объекта и воплотить свои бизнес-идеи в жизнь Звоните, чтобы узнать больше и записаться на просмотр.Мы гарантируем безопасную сделку и юридическую поддержку нашим клиентам.

Читать полностью
    Позвонить Написать
    21 500 000 Р265 600 $ или 229 300
    Агент
    +7 (906) 206-73-64
    Начать чат с агентом
    Похожие предложения
    Помещение свободного назначения в Карелия, Петрозаводск ул. Максима ... - Фото 1
    Помещение свободного назначения в Карелия, Петрозаводск ул. Максима ... - Фото 2
    Код объекта: 1824986.Уникальное предложение для бизнеса в сердце Петрозаводска Продаётся коммерческое помещение свободного назначения на улице Максима Горького, 25 — идеальное место для вашего коммерческого проекта.Основные характеристики:- Федеральный...
    • 1/4 эт.
    21 500 000 Р
    Агент
    +7 (981) Показать номер
    Посмотреть контакты
    Продажа ПСН, Петрозаводск, ул. Ровио - Фото 1
    Продажа ПСН, Петрозаводск, ул. Ровио - Фото 2
    Продажа ПСН, Петрозаводск, ул. Ровио - Фото 3
    Продажа ПСН, Петрозаводск, ул. Ровио - Фото 4
    общая площадь 164.3м², полезная площадь 164.3м²

    . Торгово-офисное помещение, назначение: нежилое помещение, этаж: 1, общая площадь 164,3 кв. м. Адрес: Республика Карелия, г. Петрозаводск, ул. Ровио, д. 18.
    • 164.3 м²
    • 1/12 эт.
    21 000 000 Р
    +7 (922) Показать номер
    Посмотреть контакты
    Помещение свободного назначения в Карелия, Петрозаводск ул. Ровио, 18 ... - Фото 1
    Помещение свободного назначения в Карелия, Петрозаводск ул. Ровио, 18 ... - Фото 2
    АУКЦИОН. Объект реализуется на торгах в электронной форме.Предлагаем к продаже просторное коммерческое помещение площадью 164,3 кв. м, расположенное в оживленном районе Петрозаводска по адресу: ул. Ровио, д. 18.Это помещение настоящий подарок для предпринимателей,...
    • 1/12 эт.
    21 000 000 Р
    Агент
    +7 (985) Показать номер
    Посмотреть контакты
    Помещение свободного назначения в Санкт-Петербург пос. Парголово, дор. ... - Фото 1
    Помещение свободного назначения в Санкт-Петербург пос. Парголово, дор. ... - Фото 2
    В ЖК комфорт-класса Прагма City по улице Заречная, д.10 в СПб продается коммерческое помещение свободно назначения площадью 99,2 м2. Дом построен по монолитно-кирпичной технологии. Высота здания — 23 этажа. Удачное расположение и благоприятный район...
    • 1/23 эт.
    21 714 000 Р
    Агент
    +7 (981) Показать номер
    Посмотреть контакты
    Помещение свободного назначения в Санкт-Петербург пос. Парголово, дор. ... - Фото 1
    Помещение свободного назначения в Санкт-Петербург пос. Парголово, дор. ... - Фото 2
    Новостройка Прагма Cityасположена в Выборгском районе Санкт-Петербурга. В монолитно-кирпичном здании высотой 23 этажа в продаже есть коммерческое помещение площадью 101,1 м2. Высота потолков составляет 3,0 метра. Удачное расположение новостройки, близость...
    • 1/23 эт.
    22 242 000 Р
    Агент
    +7 (981) Показать номер
    Посмотреть контакты

    Не нашли подходящего объявления?

    Оставьте заявку, и наши риэлторы подберут псн в районе Петрозаводска

    (0)