63 000 Р 778 $ или 671

Информация об помещении

2
Этаж

Состояние и оснащение

Количество этажей
2
Развернуть
Агент
+7 (911) 401-88-25
Начать чат с агентом

Помещение свободного назначения в Карелия, Петрозаводск ул. Ригачина, ...

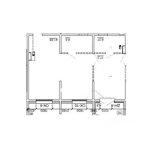
Код объекта: 1677963.Планируете продать недвижимость? Мы бесплатно оценим ваш объект и подготовим официальный отчет на бланке МФЦН. Напишите в сообщении Оценка или позвоните по телефону из объявления.К аренде предлагается помещение по адресу: город Петрозаводск, улица Ригачина, дом 64, строение 1.Площадь: 134 кв. м.Кадастровый номер: 10:01:0130110:78.Особенности объекта:- высота потолков 4,12 м;- второй этаж;- планировка квадрат с возможностью отделить пространство в отдельный кабинет;- на сегодня помещение без ремонта;- центральные водные коммуникации;- отопление - электрическое, планируется подведение газа; - электрическая мощность - до 20 кВт;- невысокие коммунальные платежи;- большие пластиковые окна по одной стене помещения;- обособленная входная группа в помещении.Инфраструктура: - отличная локация в производственной зоне улицы Ригачина, в здании разные арендаторы - от офисов до производств, рядом остановка общественного транспорта.Коммерческие условия аренды:- есть возможность арендовать помещение в таком виде (без ремонта) по ставке/кв. м;- собственник готов сделать косметический вариант ремонта, тогда ставка составит/кв. м;- внесение обеспечительного платежа;- возможны арендные каникулы.Под какую деятельность подходит:- подойдет под небольшое производство, творческих и спортивных секций, офис.Звоните, задавайте вопросы в сообщениях и записывайтесь на просмотр в любое удобное для Вас время МФЦН — Для главных сделок в жизни инвестициивнедвижимость арендапомещения удачноерасположение доходнаянедвижимость недвижимостьпетрозаводск коммерческаянедвижимость коммерция бизнес инвестиции арендаподофис выгодноснять арендаподсклад арендаподпроизводство

Читать полностью
    Позвонить Написать
    63 000 Р778 $ или 671
    Агент
    +7 (911) 401-88-25
    Начать чат с агентом
    Похожие предложения
    Помещение свободного назначения в Москва ул. Пестеля, 6 (15 м) - Фото 1
    Помещение свободного назначения в Москва ул. Пестеля, 6 (15 м) - Фото 2
    Прямая аренда от собственника Первый этаж, 14.8 м2 с мокрой точкой и окномИдеально под рабочий кабинет, интернет-магазин, офис, бьюти, маникюр, педикюр, ресницы, волосы, барбер, брови, подолог, масажный кабинет, косметологию, шугаринг, кератин, студию,...
    • 1/17 эт.
    62 000 Р
    Агент
    +7 (985) Показать номер
    Посмотреть контакты
    Помещение свободного назначения в Волгоградская область, Волгоград ... - Фото 1
    Помещение свободного назначения в Волгоградская область, Волгоград ... - Фото 2
    Сдается помещение под пищевое производство:- Советский район, ул. Рутковского, д. 1- Площадь 91,3 кв.м - Все коммуникации: газ, отопление, электричество (своя подстанция)- На территории, есть офисы и склады для хранения.- Стоимостьуб за кв.м в месяц-...
    • 1/1 эт.
    63 910 Р
    Агент
    +7 (918) Показать номер
    Посмотреть контакты
    Помещение свободного назначения в Нижегородская область, Нижний ... - Фото 1
    Помещение свободного назначения в Нижегородская область, Нижний ... - Фото 2
    Аренда помещения свободного назначения в Торгово-Офисном Центре Порт Савин.Высокий автомобильный и пешеходный трафикядом Центральный рынок, Строительная галерея.Свободная планировка. Отдельный вход с красной линии.Высота потолков 2,7 м. 5 окон 2*1 м.Коммуникации:...
    • 2/4 эт.
    63 000 Р
    Агент
    +7 (938) Показать номер
    Посмотреть контакты
    Помещение свободного назначения в Новосибирская область, Новосибирск ... - Фото 1
    Помещение свободного назначения в Новосибирская область, Новосибирск ... - Фото 2
    Сдам в аренду помещение свободного назначения 57,9 кв.м.Без комиссии для арендаторов Локация: - ж/м Чистая слобода- густозаселенный район. Более 40 тыс. жителей- оживленный внутриквартальный трафик- соседнее помещение занимает ломбард.Привлекательность...
    • 1/10 эт.
    64 000 Р
    Агент
    +7 (986) Показать номер
    Посмотреть контакты
    Помещение свободного назначения в Тульская область, Донской ул. 328-й ... - Фото 1
    Помещение свободного назначения в Тульская область, Донской ул. 328-й ... - Фото 2
    Аренда от собственника Сдается помещение площадью 150 кв.м. Идеально подходит под любой вид деятельности (готовы рассмотреть индивидуально). По желанию можно увеличить площадь. находится на втором этаже отдельно стоящего здания; санузел на этаже;...
    • 2/2 эт.
    64 000 Р
    Агент
    +7 (933) Показать номер
    Посмотреть контакты

    Не нашли подходящего объявления?

    Оставьте заявку, и наши риэлторы подберут псн в районе Петрозаводска

    (0)