2 340 000 Р 32 790 $ или 27 960

Информация об помещении

4
Этаж

Состояние и оснащение

Количество этажей
4
Развернуть
Агент
+7 (981) 400-85-96
Начать чат с агентом

Помещение свободного назначения в Карелия, Сегежа Лесная ул., 3А (132 ...

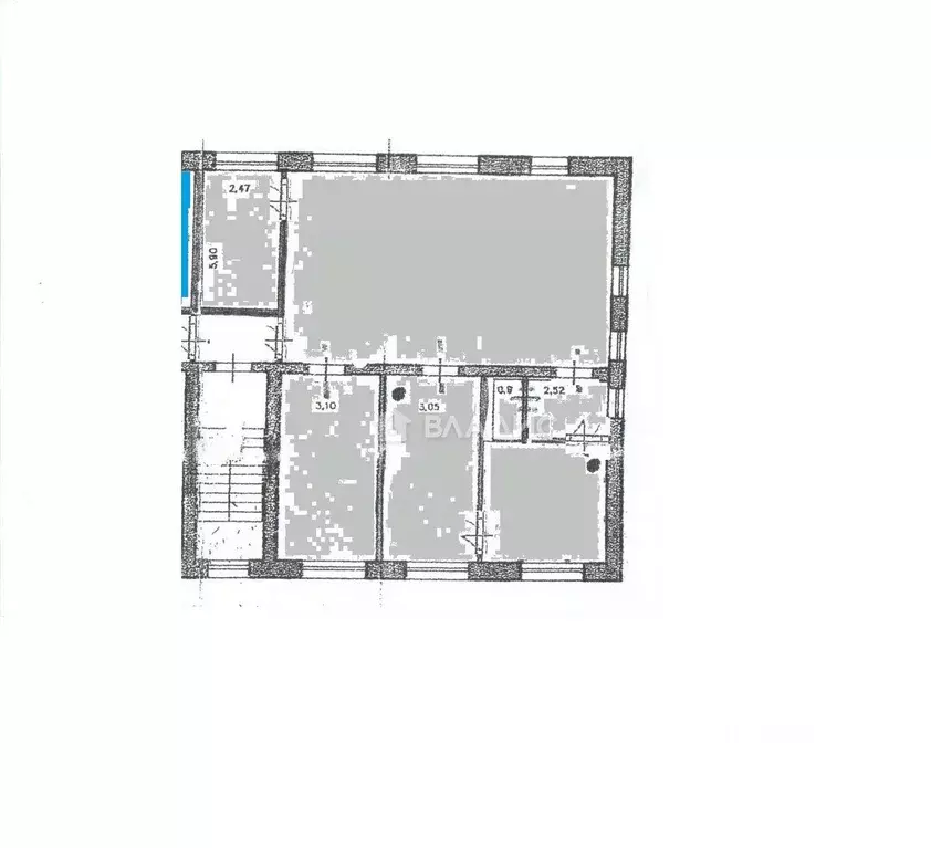
Код объекта: 1808029.Горячее предложение до конца года Всего 15000/1кв.мУникальное предложение для бизнес-профессионалов и инвесторов — коммерческое помещение свободного назначения в Сегеже, Республика Карелия. Объект расположен по адресу: Лесная улица, 3А.Возможные варианты назначения:- построить хостел- организовать салон красоты- создать частное медицинское учреждениеНо наиболее интересный вариант это кафе/бар/ресторан. Ввиду отличного расположения в центре города, находящееся в семейном парке досуга и отдыха. В здании находитсяазличных офисных организаций + по-соседству 3 гостиницы, где нет буфета, соседнее здание так-же офисное с 3 организациями. (завтраки и комплексные обеды будут актуальны + аренда под мероприятия)Это кирпичное здание 1968 года постройки, имеет четыре этажа, и ваше помещение находится на верхнем этаже. В 2025г. на здании полностью перестелена крыша, в 2024г. во всём здании заменена сантехника и электрика на этаже. Общая площадь составляет 132 кв. м, что предоставляет широкие возможности для различных коммерческих целей.Помещение имеет общий вход и свободный доступ, что удобно для клиентов и сотрудников. Внутри предусмотрена вентиляция, а центральное отопление обеспечивает комфортные условия в холодное время года. Наличие одного раздельного санузла соответствует требованиям функциональности и удобства.Парковка на территории — наземная, что добавляет привлекательности объекту.Этот объект станет отличным выбором для тех, кто ищет просторное и функциональное помещение для своего бизнеса или рассматривает его как инвестицию. Гибкость назначения и просторность планировки делают его универсальным решением для многих видов деятельности.Мы гарантируем безопасную сделку и юридическую поддержку нашим клиентам. Поможем одобрить ипотеку с сниженной ставкой. Возможна долгосрочная аренда за небольшую стоимость.

Читать полностью
    Позвонить Написать
    2 340 000 Р32 790 $ или 27 960
    Агент
    +7 (981) 400-85-96
    Начать чат с агентом
    Похожие предложения
    Помещение свободного назначения в Карелия, Питкяранта ул. Ленина, 15 ... - Фото 1
    Помещение свободного назначения в Карелия, Питкяранта ул. Ленина, 15 ... - Фото 2
    Продаётся нежилое помещение в центре города с отдельным входом. Высокая проходимость. Рядом находится администрация округа. Подходит под любой вид деятельности. Документы оформлены.
    • 1/5 эт.
    2 300 000 Р
    Агент
    +7 (911) Показать номер
    Посмотреть контакты
    Помещение свободного назначения в Белгородская область, Корочанский ... - Фото 1
    Помещение свободного назначения в Белгородская область, Корочанский ... - Фото 2
    Срочно продам Помещение под магазин или другой вид деятельности С прилавкам Общая площадь 344,7 кв.м. Подключена 3х.фазная линия электропередач, вода,газ, канализация Участок 11сот,в собственности Потребность населения в открытии магазина существенная...
    • 1/1 эт.
    2 300 000 Р
    Агент
    +7 (988) Показать номер
    Посмотреть контакты
    Помещение свободного назначения в Рязанская область, Рыбновский район, ... - Фото 1
    Помещение свободного назначения в Рязанская область, Рыбновский район, ... - Фото 2
    Код объекта: 1197277.Продам торговое помещение в ГОРОДЕ МАСТЕРОВ.Находится рядом с трассой М 5.Общая площадь помещения 199 кв.м.Находится в многофункциональной зонеРасположен в 27 км от города Рязани и в 50 метрах от федеральной автодороги М5 Урал .Компания...
    • 1/1 эт.
    2 300 000 Р
    Агент
    +7 (980) Показать номер
    Посмотреть контакты
    Помещение свободного назначения в Тверская область, Конаково ул. ... - Фото 1
    Помещение свободного назначения в Тверская область, Конаково ул. ... - Фото 2
    Продам или сдам в аренду светлое и просторное помещение в г. Конаково, ул. Строителей, д. 20.Идеальный вариант для любого бизнеса, ориентированного на клиентов или удаленную работу.Благодаря удачной планировке и высоким потолкам, здесь можно организовать...
    • 1/5 эт.
    2 300 000 Р
    Агент
    +7 (915) Показать номер
    Посмотреть контакты
    Продажа ПСН, Высокое, Рыбновский район, Купеческая улица - Фото 1
    Продажа ПСН, Высокое, Рыбновский район, Купеческая улица - Фото 2
    Продажа ПСН, Высокое, Рыбновский район, Купеческая улица - Фото 3
    Продажа ПСН, Высокое, Рыбновский район, Купеческая улица - Фото 4
    Продажа ПСН, Высокое, Рыбновский район, Купеческая улица - Фото 5
    Продажа ПСН, Высокое, Рыбновский район, Купеческая улица - Фото 6
    Продажа ПСН, Высокое, Рыбновский район, Купеческая улица - Фото 7
    Продажа ПСН, Высокое, Рыбновский район, Купеческая улица - Фото 8
    общая площадь 199м², полезная площадь 199м²

    Код объекта: 1197277.Продам торговое помещение в ГОРОДЕ МАСТЕРОВ. Находится рядом с трассой М 5.Общая площадь помещения 199 кв.м.Находится в многофункциональной зонеРасположен в 27 км от города Рязани и в 50 метрах от федеральной автодороги М5 "Урал"....
    • 199 м²
    • 1-й эт.
    2 300 000 Р
    Агент
    +7 (491) Показать номер
    Посмотреть контакты

    Не нашли подходящего объявления?

    Оставьте заявку, и наши риэлторы подберут псн в районе Сегежи

    (0)